UID313300
威望1
金钱11129
交易诚信度0
主题7
帖子40
注册时间2006-9-16
最后登录2022-12-29
初级会员
 
交易诚信度0
注册时间2006-9-16
|
马上注册 家电论坛,众多有奖活动等你来参与!
您需要 登录 才可以下载或查看,没有账号?注册
x
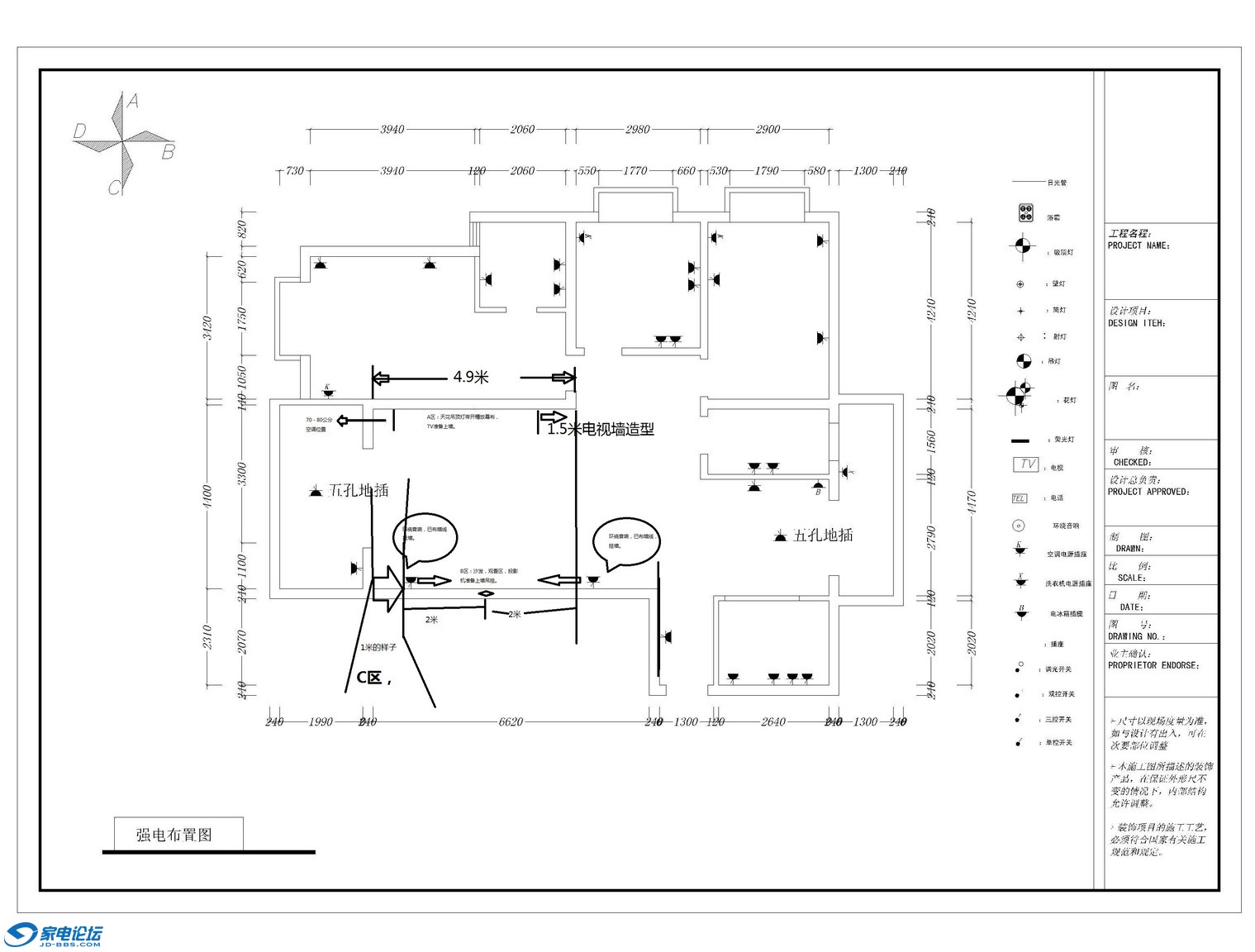
最近搞装修,预备上720P和5.1声道影院。环绕线已经布置,由于还没有买功放及投影机,
所以视频线没有布置。。考虑很久,还是觉得要把线隐藏起来。所以在做最后的涂料之前,准备埋线。。
现在的情况如下:
电视墙 4.9米 分三块 从左到右,
依次为:空调区(70-80公分)
TV(投影幕布)区)2.6米左右
装饰区 1.5米左右
电视墙据沙发这边墙 是 4.4米
沙发这边墙共长6.9米,也是分三区,从左到右 也准备分三块
其中,投影机在中间部分,准备天花吊投
投影机距离俩环绕预备点 各2米。
关于层高:
层高2.75米
电视墙那边做了局部吊顶 下来20公分,,,而且在墙正面也 做了灯管槽,下来30公分
沙发这边没有吊顶
现在问题是:
假设电视墙中间部分为A区, 假设 沙发摆放位置(投影机位置)为B区 , 投影机左边(面对电视墙)为C区
功放肯定是放A区没疑问
那么 我的HTPC 放A区好 还是放C区好????
我的考虑:
1、如果HTPC 放A区 ,那么 从A区 到 B区(投影机) 就要放视频线, 而且 只能走天花 , 还只能是明线。。。。长度大概在10米左右,,音频线很好布置
2、如果HTPC 放C区 , 那么 从A区到 C区 就得放 音频线 长度 大概不超过15米 视频线 可以埋进墙内(BC区很近) 音频线 也可以埋进墙
纠结点:
如果选1 那么 HDMI线要埋2根 还要1根色差线 成本高些
如果选2 我 不知道 音频线 要埋什么型号
同轴? 光纤???
郁闷
这个技术问题 谁来帮我解决下 谢谢了
先上平面图,,,,晚上上现场图。!
谢谢各位老大了!! |
|