家电论坛

广告合作
 注册  找回密码

QQ登录

只需一步,快速开始

手机号码,快捷登录

手机号码,快捷登录

123
返回列表 发新帖
楼主: sepia

已收房,恳请各位老大对户型提点建议

[复制链接]

10

主题

2366

帖子

45

威望

特级会员

Rank: 5Rank: 5Rank: 5Rank: 5Rank: 5

交易诚信度
0
注册时间
2004-3-1
QQ
发表于 2011-1-20 01:57 | 显示全部楼层
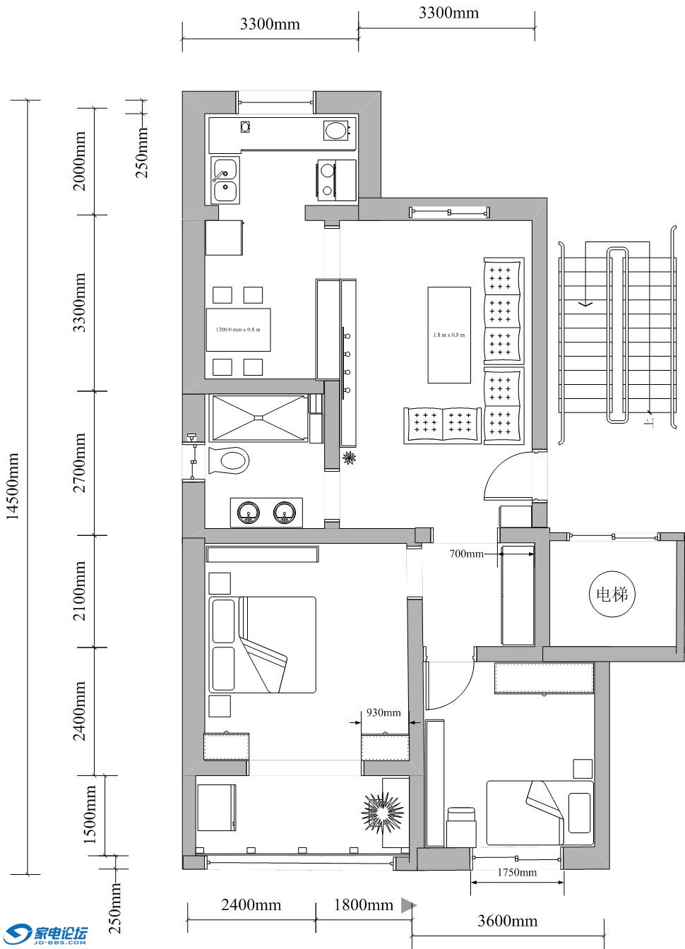
乱画了个图:
1.JPG

1。我认为餐桌靠西墙放是最合适的,电视后面的隔断(上部是透光隔架、下部是柜体的那种)有足够的容身开门空间。
2。客厅沙发、电视等位置前面6楼就有了,这样合适。进门右手还是应该有个鞋柜的,多少能阻隔下门外的视线;左手边视情况可以放穿鞋deng之类的以利于换鞋。
3。电楼左边的空间可以做一个储物柜,现在家居的储物功能是很实用的。
4。至于你太太要用书桌,完全可以放在主卧电视边顶角位置,3。9米的主卧净宽不会局促的。放阳台虽然可以,但阳台首先应考虑晾衣方便,在相对潮湿的环境下工作对身心也不利;再说夏天在阳台也很热,为解署空调只能连阳台一起制冷,这样很浪费电。


另画一个图,也是乱画的,随便看看就行,别当回事。
2.JPG

[ 本帖最后由 ak76 于 2011-1-20 01:59 编辑 ]
回复 支持 反对

使用道具 举报

46

主题

3301

帖子

242

威望

版主

Rank: 10

积极参与奖

交易诚信度
0
注册时间
2004-9-1
发表于 2011-1-20 11:39 | 显示全部楼层
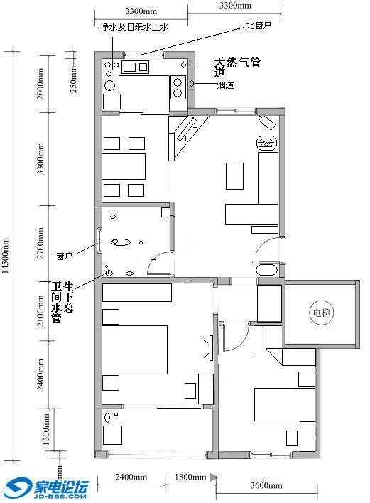
ak的上图我比较赞同,下图的小卧室不太好
下图的客厅方案我也曾考虑过
灌水也是一种支持,关键是不能灌脏水、搅混水。我们的口号是:“我们只灌农夫山泉......”
回复 支持 反对

使用道具 举报

8

主题

153

帖子

1

威望

初级会员

Rank: 2Rank: 2

交易诚信度
0
注册时间
2006-9-21
 楼主| 发表于 2011-1-20 11:52 | 显示全部楼层
让各位老大费心了,在此再次表示深深的谢意。

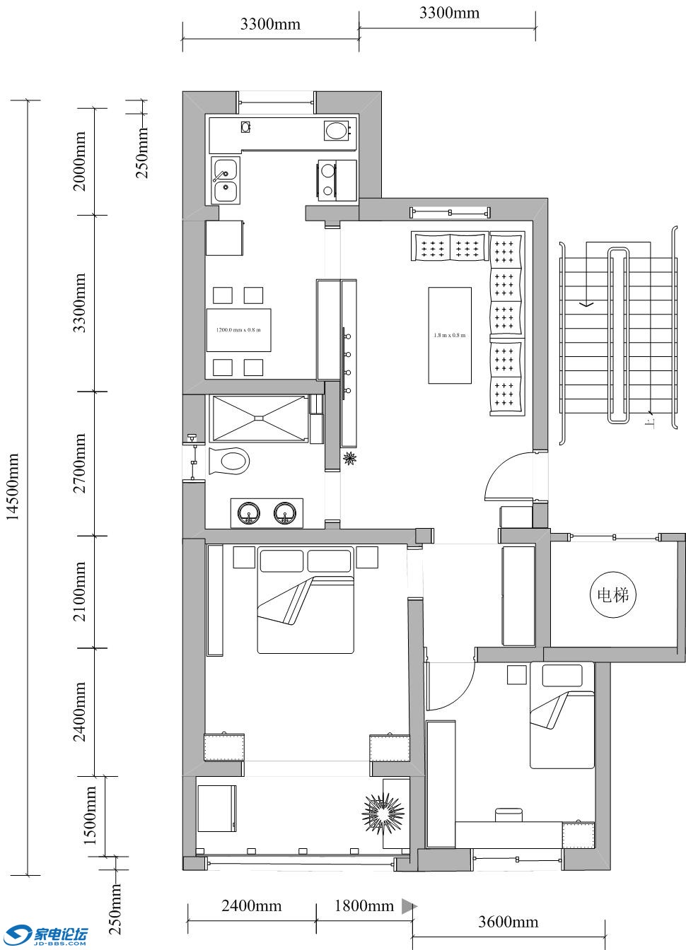
关于客卧,就按优质镜头和ak76两位老大的意思,将床头改为朝东。

关于主卧,我个人意见还是希望将床头按原先思路朝北摆放,因为一来现在的窗帘完全可以做到全避光,二来因为是西户,且卫生间有窗户,所以潮湿的问题应该不会存在,而且床头靠墙为承重墙应该隔音相对好些;三来可以考虑在主卧西墙放置一低于腰高的书柜及书架音响等;南侧墙的衣柜计划不变,阳台书桌可以考虑撤掉,换成植物摆放或茶桌等。

这样如何???
其实,我是一名车夫。
回复 支持 反对

使用道具 举报

8

主题

153

帖子

1

威望

初级会员

Rank: 2Rank: 2

交易诚信度
0
注册时间
2006-9-21
 楼主| 发表于 2011-1-21 17:51 | 显示全部楼层
003.jpg

这个衣柜下半部分是如何使用的???
其实,我是一名车夫。
回复 支持 反对

使用道具 举报

46

主题

3301

帖子

242

威望

版主

Rank: 10

积极参与奖

交易诚信度
0
注册时间
2004-9-1
发表于 2011-1-22 17:52 | 显示全部楼层
抽屉
或者床垫掀开,上开门
当然也可以两者结合
灌水也是一种支持,关键是不能灌脏水、搅混水。我们的口号是:“我们只灌农夫山泉......”
回复 支持 反对

使用道具 举报

8

主题

153

帖子

1

威望

初级会员

Rank: 2Rank: 2

交易诚信度
0
注册时间
2006-9-21
 楼主| 发表于 2011-1-24 09:49 | 显示全部楼层
非常感谢黑猫中队长、dasen、土霸王、优质镜头、ak76兄弟的建议和意见,上个图,大家看看:
方案.jpg
其实,我是一名车夫。
回复 支持 反对

使用道具 举报

8

主题

153

帖子

1

威望

初级会员

Rank: 2Rank: 2

交易诚信度
0
注册时间
2006-9-21
 楼主| 发表于 2011-1-24 17:28 | 显示全部楼层
另一种方案:

户型图B.jpg
其实,我是一名车夫。
回复 支持 反对

使用道具 举报

29

主题

1468

帖子

5

威望

中级会员

Rank: 3Rank: 3Rank: 3

交易诚信度
0
注册时间
2008-8-7
发表于 2011-1-24 17:39 | 显示全部楼层
回复 支持 反对

使用道具 举报

0

主题

6

帖子

0

威望

初级会员

Rank: 2Rank: 2

交易诚信度
2
注册时间
2007-5-15
发表于 2011-1-24 18:16 | 显示全部楼层
1.厨房设计有问题,洗菜盆最好面对窗子,这样光线好。
2.床最好不要对窗。如果对窗,容易着凉,雷雨也容易受惊。
3 小空间,背景墙最好做通透的,空间感会比较好。
4 次卧床最好不要靠窗,一是开窗不方便 ,二下雨忘记关窗怎么办。

[ 本帖最后由 fengxuanping 于 2011-1-24 18:19 编辑 ]
回复 支持 反对

使用道具 举报

您需要登录后才可以回帖 登录 | 注册

本版积分规则

Archiver|手机版|手机版|客服:010-60152166 邮箱:zx@jd-bbs.com QQ:895456697|广告合作|账号注销|家电联盟网

京公网安备 11010602010207号 ( 京ICP证041102号,京ICP备09075138号-9 )

GMT+8, 2026-3-30 02:05 , Processed in 0.153388 second(s), 25 queries , Gzip On.

快速回复 返回顶部 返回列表