家电论坛

广告合作
 注册  找回密码

QQ登录

只需一步,快速开始

手机号码,快捷登录

手机号码,快捷登录

查看: 2923|回复: 4

设计问题求解,各位牛人们进来提个建议吧....

[复制链接]

21

主题

330

帖子

4

威望

中级会员

Rank: 3Rank: 3Rank: 3

交易诚信度
6
注册时间
2004-8-28
QQ
发表于 2012-9-7 10:39 | 显示全部楼层 |阅读模式

马上注册 家电论坛,众多有奖活动等你来参与!

您需要 登录 才可以下载或查看,没有账号?注册

x

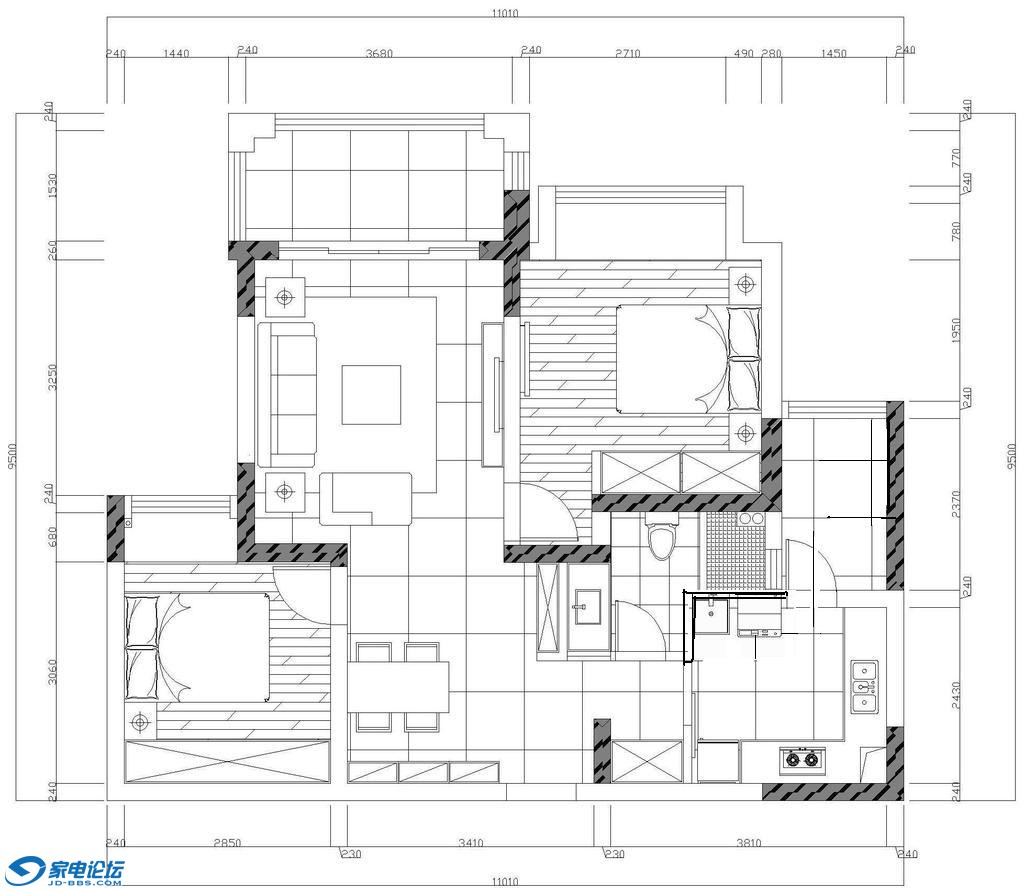
客厅和房间的墙都是砌好的.没什么问题.
现在主要是卫生间和厨房的设计比较头疼.设计图上放洗衣机和洗衣池的地方是个小阳台.全玻璃密封的.
感觉单放洗衣机有点浪费了.并且地方太小不够晾衣服.放在这边不太合理
整个卫生间和厨房都是通过这个阳台采光和通风.不知道这个阳台该怎么设计比较合适.
请各位牛人指点一下.....
回复

使用道具 举报

4

主题

197

帖子

7

威望

中级会员

Rank: 3Rank: 3Rank: 3

交易诚信度
0
注册时间
2011-4-3
QQ
发表于 2012-9-7 11:13 | 显示全部楼层

淋浴间改小,洗衣机移到厨房,

淋浴间改小,洗衣机移到厨房,
回复 支持 反对

使用道具 举报

21

主题

330

帖子

4

威望

中级会员

Rank: 3Rank: 3Rank: 3

交易诚信度
6
注册时间
2004-8-28
QQ
 楼主| 发表于 2012-9-7 16:18 | 显示全部楼层
谢ls的指点,不过这样的话.阳台好像还是空着的啊
回复 支持 反对

使用道具 举报

112

主题

2132

帖子

20

威望

高级会员

Rank: 4Rank: 4Rank: 4Rank: 4

交易诚信度
0
注册时间
2007-1-15
发表于 2012-9-7 20:37 | 显示全部楼层
看了半天 没找到入户门{:soso_e127:}
采菊东篱下 悠然见南山
SONY KD-65A9F
回复 支持 反对

使用道具 举报

21

主题

330

帖子

4

威望

中级会员

Rank: 3Rank: 3Rank: 3

交易诚信度
6
注册时间
2004-8-28
QQ
 楼主| 发表于 2012-9-7 21:10 | 显示全部楼层
在下面中间的位置.一进门是餐厅......
回复 支持 反对

使用道具 举报

您需要登录后才可以回帖 登录 | 注册

本版积分规则

Archiver|手机版|手机版|客服:010-60152166 邮箱:zx@jd-bbs.com QQ:895456697|广告合作|账号注销|家电联盟网

京公网安备 11010602010207号 ( 京ICP证041102号,京ICP备09075138号-9 )

GMT+8, 2026-4-1 20:26 , Processed in 0.096125 second(s), 26 queries , Gzip On.

快速回复 返回顶部 返回列表