家电论坛

广告合作
 注册  找回密码

QQ登录

只需一步,快速开始

手机号码,快捷登录

手机号码,快捷登录

查看: 2291|回复: 0

穷屌丝装修,求教电路及酒柜隔断问题.

[复制链接]

1

主题

8

帖子

0

威望

新手上路

Rank: 1

交易诚信度
0
注册时间
2008-5-27
QQ
发表于 2012-9-13 14:35 | 显示全部楼层 |阅读模式

马上注册 家电论坛,众多有奖活动等你来参与!

您需要 登录 才可以下载或查看,没有账号?注册

x
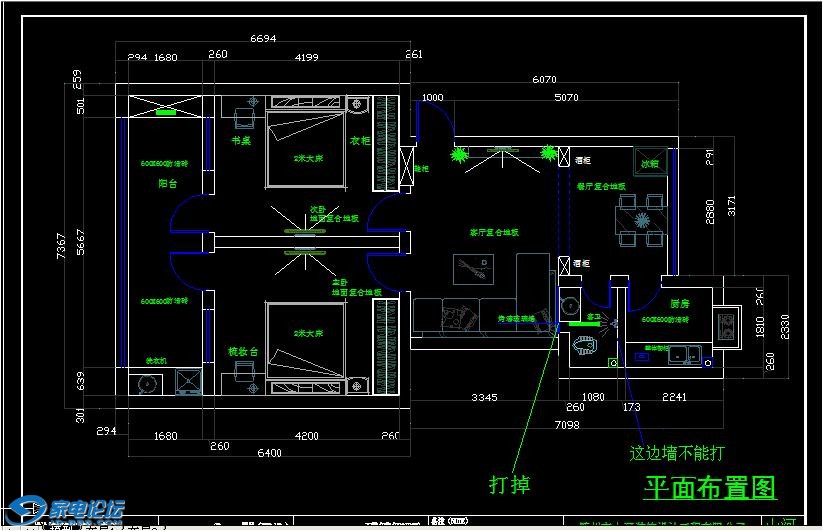
      本人穷屌丝一枚,买入二手老公房,实用面积七十左右,装修公司报价太高,现准备完全自己和家人动手简装(其实是家人弄,自己在上班,只能把握方向),现在准备做水电,水的方面比较简单,能完全搞定,电的方面遇到点问题,帮各位大神指教:
1.        强弱电箱的选择:这种房子强电箱应该选几路的?弱电箱选多大的呢?有没有好的牌子及型号推荐?
2.        漏保及空开应该选什么型号?
3.        沙发边的插座怎么放?目前沙发把地方占满了,放在墙上会被挡住.
4.        餐厅和客厅的隔断想做个门套酒柜一体的门洞,大家有没有好建议?最好有图片给我参考下.
位置摆放图.JPG
回复

使用道具 举报

您需要登录后才可以回帖 登录 | 注册

本版积分规则

Archiver|手机版|手机版|客服:010-60152166 邮箱:zx@jd-bbs.com QQ:895456697|广告合作|账号注销|家电联盟网

京公网安备 11010602010207号 ( 京ICP证041102号,京ICP备09075138号-9 )

GMT+8, 2026-4-1 20:32 , Processed in 0.130786 second(s), 26 queries , Gzip On.

快速回复 返回顶部 返回列表