家电论坛

广告合作
 注册  找回密码

QQ登录

只需一步,快速开始

手机号码,快捷登录

手机号码,快捷登录

查看: 2979|回复: 5

长帖慢更,精活细做--350平叠拼,一切先从格局开始说起

[复制链接]
dsg54484 该用户已被删除
发表于 2013-10-30 22:08 | 显示全部楼层 |阅读模式

马上注册 家电论坛,众多有奖活动等你来参与!

您需要 登录 才可以下载或查看,没有账号?注册

x
*此帖最先发表于chiphell,谢勿转
原本打算在群里咨询下大家的看法,谁曾想完全淹没在晚高峰时段的各种话题里,所以还是老老实实把帖子发出来,希望各位大大走过路过留下您的宝贵意见,小生叩谢

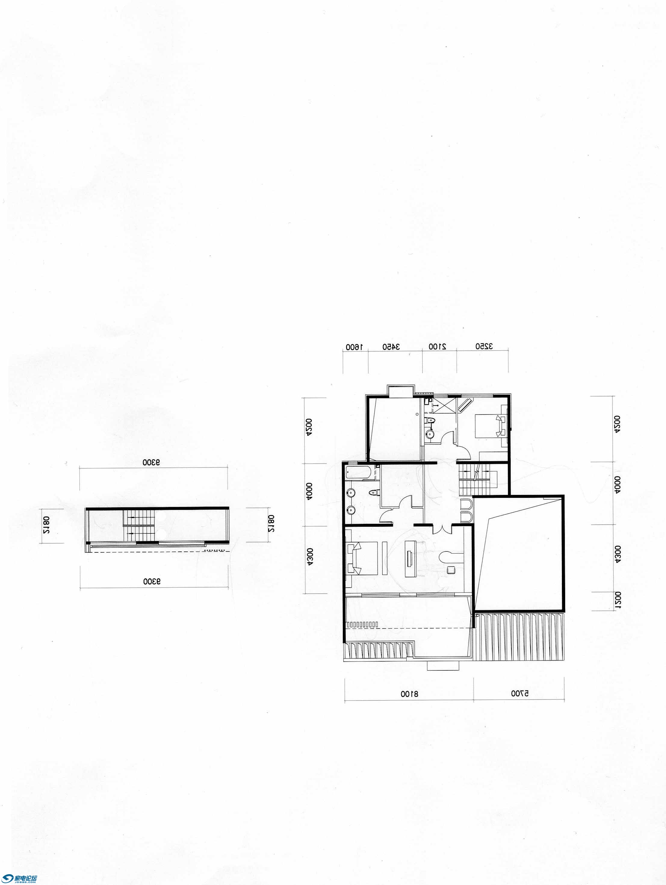
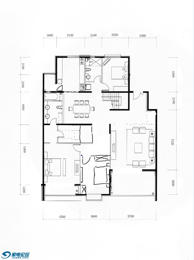
最初的户型图如下
img059.jpg
img058.jpg

要动土建的地方如下
062.JPG
063.JPG


内部讨论既定方案如下
1.入户增加玄关
2.拆除此处墙构及窗户,打通客厅与阳台
3.封闭此处窗户,砌实墙
4.封阳台,断桥铝窗落地
5.此书房外推,作为老人房
6.一层储藏室内推,增加国道宽度(隐形门)
7.增加一层主卧衣帽间面积
8.一层主卧外扩,封阳台
另一个8.厨房阳台门与橱柜(此处为冰箱)做齐(没注意标错了。。)
9.良心kfs的不算面积外庭,加个顶就是间房
10.此处比较复杂,后面详说
11.一层阳台封顶后,此处设为阳台

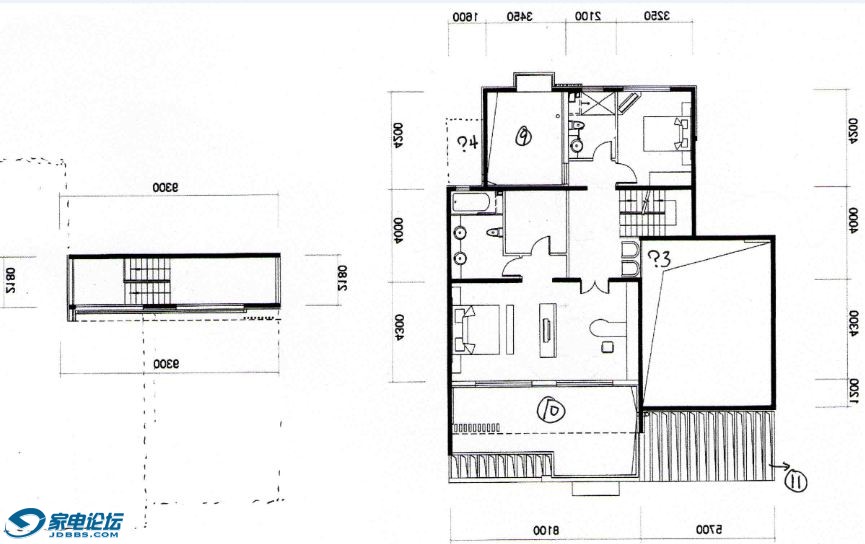
存疑处
问号1.玄关不好放置,右侧是否到墙,而且客厅部分层高5.5米,再考虑在钢琴位置设为及顶鞋物柜
问号2.扩大此处过道宽度是否有必要,而且老人房房门最开始考虑在右侧,但是考虑床位放置和远处厕所位置,改为左侧,是否有必要
问号3.此处座椅后由于层高落差有一个膝盖那么高的落地漏窗,考虑采光及建(wu)筑(liao)美(zhuang)学(bi)我希望保留,但家人普遍觉得不安全,而且全封闭的钢化玻璃客厅一侧几乎无法清洗,纠结
问号4.此处如虚线所示有一个小阳台,但是bt的是这个阳台完全和邻居公用,也就是左侧邻居也有这么个阳台,而且中间没有隔断墙!求问如何处理

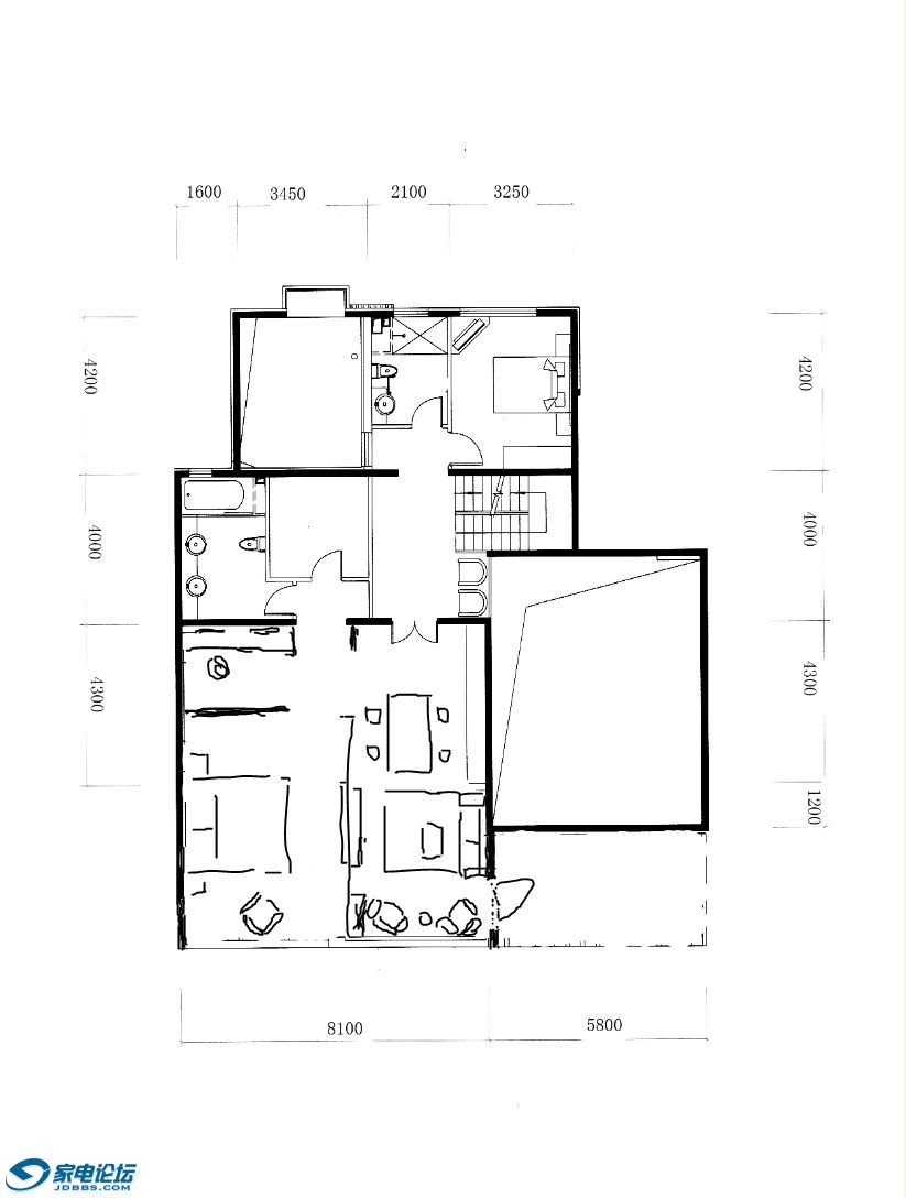
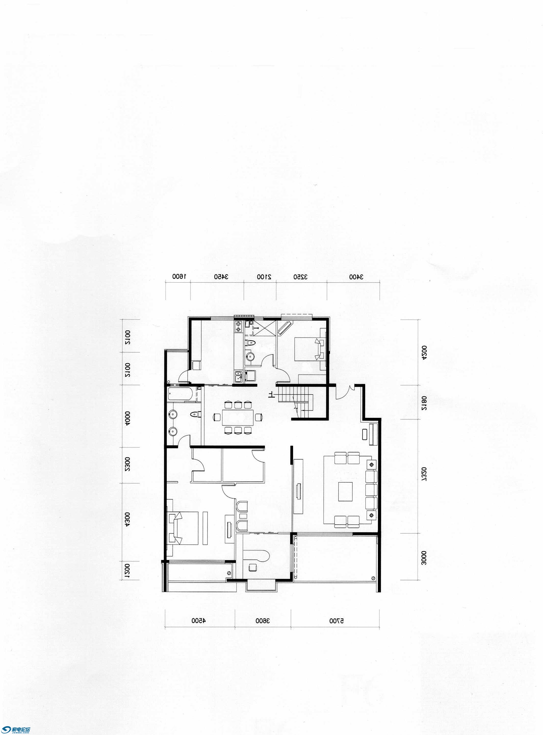
1,2层初步施工图示
064.JPG
065.JPG

圈10处基本如图所示
纵向隔断分割为卧室+工作室(避光)和闲待着室,无门,卧室与工作室为隔断,留门
卧室只有床,床几外加椅子一把

此外
三层露台与单层面积基本相同,客厅上方(二层半)加一与客厅同面积的娱乐室,左侧保留露天露台

恩,暂时就这么多,希望各位大大多提意见,谢谢






评分

参与人数 1威望 +1 收起 理由
2048 + 1

查看全部评分

回复

使用道具 举报

14

主题

926

帖子

1

威望

初级会员

Rank: 2Rank: 2

交易诚信度
0
注册时间
2007-12-28
发表于 2013-10-30 23:53 | 显示全部楼层
LZ都这么不差钱了,请个好点的设计师一起讨论啊
回复 支持 反对

使用道具 举报

hqyubo 该用户已被删除
发表于 2013-11-9 14:18 | 显示全部楼层
请一品帮忙布局看看!
回复 支持 反对

使用道具 举报

5

主题

571

帖子

36

威望

高级会员

Rank: 4Rank: 4Rank: 4Rank: 4

交易诚信度
4
注册时间
2003-7-15
发表于 2013-11-9 15:16 | 显示全部楼层
说实话 看不出来有350平米
春有百花
秋望月
夏有凉风
冬听雪
心中若无烦恼事
便是人生好时节
回复 支持 反对

使用道具 举报

46

主题

1118

帖子

40

威望

高级会员

Rank: 4Rank: 4Rank: 4Rank: 4

交易诚信度
0
注册时间
2005-1-10
发表于 2013-11-9 16:44 | 显示全部楼层
鱼儿小 发表于 2013-11-9 15:16
说实话 看不出来有350平米

楼主说的350应该不是建筑面积
回复 支持 反对

使用道具 举报

10

主题

77

帖子

1

威望

初级会员

Rank: 2Rank: 2

交易诚信度
0
注册时间
2013-2-7
发表于 2013-11-10 19:38 | 显示全部楼层
还是老老实实花点钱吧找个设计师吧,这样的漫聊不会有效果的
回复 支持 反对

使用道具 举报

您需要登录后才可以回帖 登录 | 注册

本版积分规则

关闭

活动推荐上一条 /1 下一条

Archiver|手机版|手机版|客服:010-60152166 邮箱:zx@jd-bbs.com QQ:895456697|广告合作|账号注销|家电联盟网

京公网安备 11010602010207号 ( 京ICP证041102号,京ICP备09075138号-9 )

GMT+8, 2026-4-19 20:46 , Processed in 0.191108 second(s), 37 queries , Gzip On.

快速回复 返回顶部 返回列表