家电论坛

广告合作
 注册  找回密码

QQ登录

只需一步,快速开始

手机号码,快捷登录

手机号码,快捷登录

查看: 2836|回复: 1

请大家指教下着户型能怎么设计改下

[复制链接]
lijun4547 该用户已被删除
发表于 2013-11-18 17:06 | 显示全部楼层 |阅读模式

马上注册 家电论坛,众多有奖活动等你来参与!

您需要 登录 才可以下载或查看,没有账号?注册

x

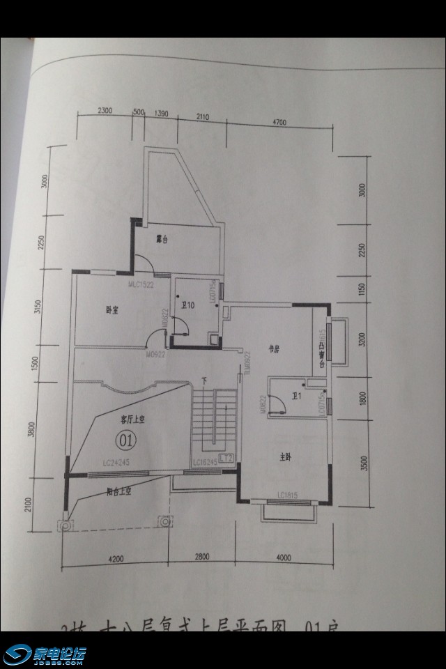
一楼户型图

一楼户型图

请教各位:楼梯能不能重新设计下,让一楼多一个休闲厅之类的出来。 主卧、次卧太小,能不能改大点呢?
二楼次卫在厨房上面,这太不好了,有法子给改下吗? 谢谢各位大哥了

aa.jpg
回复

使用道具 举报

0

主题

37

帖子

0

威望

新手上路

Rank: 1

交易诚信度
0
注册时间
2012-12-12
发表于 2013-11-19 13:09 | 显示全部楼层
厨房的楼上是卫生间?
回复 支持 反对

使用道具 举报

您需要登录后才可以回帖 登录 | 注册

本版积分规则

关闭

活动推荐上一条 /1 下一条

Archiver|手机版|手机版|客服:010-60152166 邮箱:zx@jd-bbs.com QQ:895456697|广告合作|账号注销|家电联盟网

京公网安备 11010602010207号 ( 京ICP证041102号,京ICP备09075138号-9 )

GMT+8, 2026-4-19 19:02 , Processed in 0.164763 second(s), 33 queries , Gzip On.

快速回复 返回顶部 返回列表